Lehr- und Forschungs-OP
Konzept
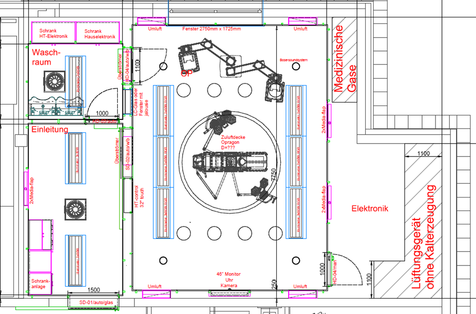
Im vollständig eingerichteten Lehr- und Forschungs-OP werden neue und bestehende OP-Technologie, Medizin-, Haus- und Gebäudetechnik im Sinne eines effizienten und sicheren Systems getestet, weiterentwickelt, demonstriert und geschult. Ein komplettes System kann in verschiedenen Funktionszuständen erklärt und trainiert werden. Forschung und Entwicklung neuer Produkte und die Simulation und Optimierung von Arbeitsprozessen sind möglich.
Forschungsschwerpunkte
- Workflow, Gebrauchstauglichkeit und User Centered Design
- Hygiene- und Lüftungstechnik mit innovativen Konzepten
- Einsatz von Robotik
- Technologieentwicklung, Systemintegration (Robotik, Monitoring, 80001-1 MT2IT, Telemedizin)
- Personalausbildung, -weiterbildung und -qualifikation
- Krankenhausplanung, - bau und -zertifizierung.
- Betrieb inkl. Service und Wartungsthemen
- Studentischer Unterricht
- Anforderungen von Anästhesie und Chirurgie
- Schnittstellen zu Haus-, Gebäude- und Betriebstechnik inkl. Steuerung
- Videomanagement
- Einsatzmöglichkeiten von RFID
Ausblick
Der Lehr- und Forschungs-OP dient als Plattform und schafft Zugang zu neuen Technologien. Es entsteht die Möglichkeit zur beruflichen (Weiter-) Qualifikation für medizinisches und technisches Personal. Strategische Partnerschaften mit der Industrie können ausgebaut werden. Die Umsetzung und Kommerzialisierung innovativer Ideen in Ausgründungen wird durch die existierenden Angebote im Netzwerk der Hochschule gefördert.



